Klapka do kouřovodu nerez 1mm, 200mm
Klapka do kouřovodu nerez 1mm, 200mm
Nutno obědnat samostatné ovládání komínové klapky.
TECHNICKÁ DATA
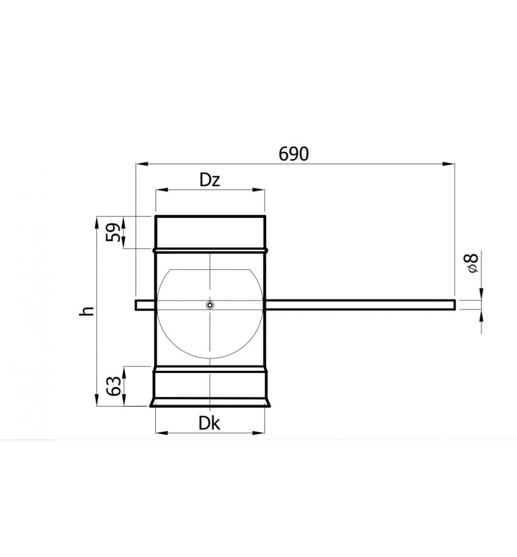
- Klapka uzavírá na 75%
- Klapka se ovládá otáčením hřídele
Parametry
| Délka táhla: | 690 mm |
|---|---|
| Kouřovody nerez: | Klapka do kouřovodu |
| VNITŘNÍ PRŮMĚR DK: | 202 mm |
| VNĚJŠÍ PRŮMĚR DZ: | 201 mm |
| Výška: | 300 mm |
| Průměr kouřovodu: | 200 mm |
Příslušenství
Ceny označené * jsou zvýhodněné a platí jen při nákupu jako příslušenství k tomuto zboží.
![]() |
Samostatné ovládání klapky s bovdenem pro napojení pod úhlem | 1 565 Kč * |
Do košíku |
![]() |
Karl samostatné ovládání komínové klapky nerez | 1 723 Kč | Do košíku |


