KRBOVÁ VLOŽKA BEF THERM B 8
DOPRAVA zdarma
Tento produkt doručíme v rámci ceny.
KRBOVÁ VLOŽKA BEF THERM B 8
Krbová vložka s posuvným systémem dveří do boku.
Tento systém otevírání je úplnou novinkou na evropském trhu. Nový výsuvný systém zajišťuje plynulý, nejsnadněji ovládaný lehký posun dveří a bezhlučný provoz. Propracovaný přítlak dveří zajišťuje dokonalou těsnost topeniště. Tento systém má nejkomfortnější provedení, jaké tu ještě nebylo.
Inovativní oplach skla a bezchybně čisté sklo. Vzduch je veden zády přes nahřívací komory. Ty zajišťují vyšší teplotu přivedeného vzduchu pro oplach skla a pomalejší jeho proudění.
Optimalizovaný tvar carconového topeniště vyvinutý pomocí aerodynamického modelu.
Nejmasivnější akumulační materiál na trhu carcon, který je až o 100% masivnější než u starších typů. Disponuje ale i mnohem větší akumulační schopností, vydrží nahřátý až 12hodin.
Strukturovaný aktivní povrch carconů zachycuje partikulární částice s následným dopalováním.
Externí přívod vzduchu umožňuje připojení elektronické regulace hoření.
Jednoduché ovládání jedním regulačním prvkem.
Součástí krbové vložky je zazsívací rámeček.
Jmenovitý výkon celkový: 8kW
Účinnost: 83,9%
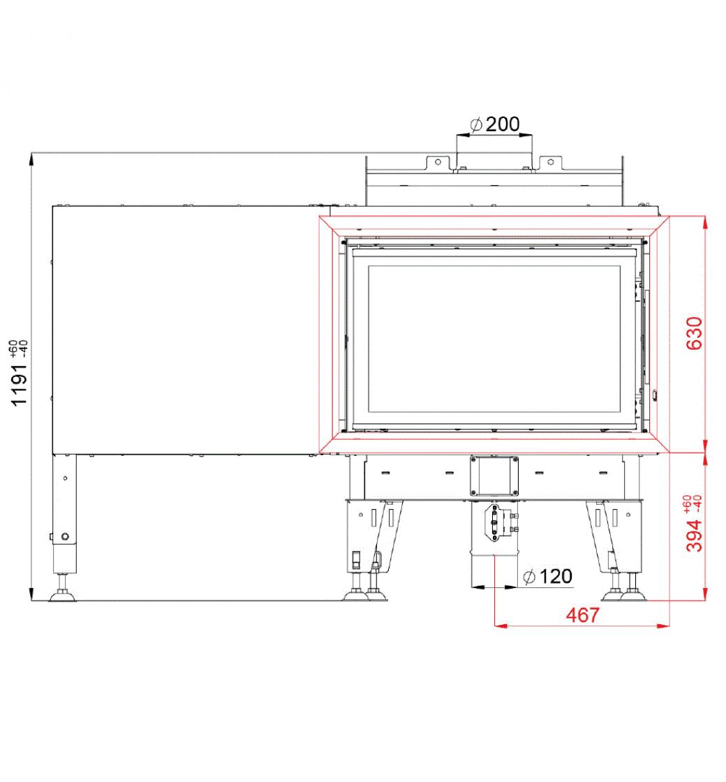
Průměr kouřovodu: 200 mm
Vlastní rozměr topeniště: 600x295 mm
Teplota spalin: 257°C
Parametry
| Jmenovitý výkon: | 8 kW |
|---|---|
| Průměr kouřovodu: | 200 mm |
| Účinnost: | 83,9 % |
| Prosklení: | rovné |
| Externí přívod vzduchu: | ano |
| Ø trubky externího přívodu vzduchu: | 120 mm |
